Project description:
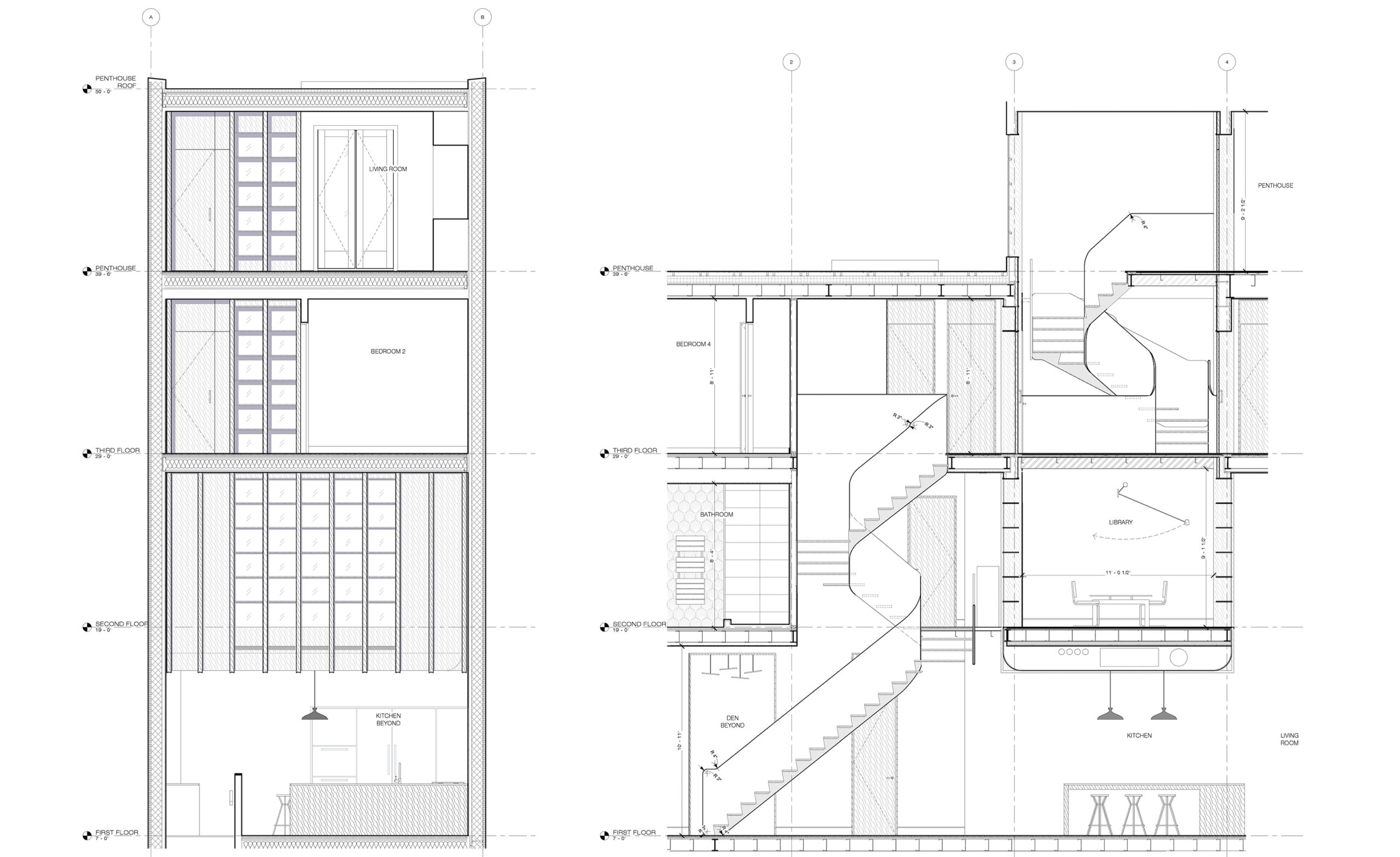
The Library House is a ground-up home in Park Slope, Brooklyn. Built for a chef and her family, it features a three story library nested within the building’s volume. The library doubles as a formal dining room for hosting dinners, and sits above the expansive kitchen and the main living room. A sculptural steel stair weaves its way up through the house, intersecting the library and continuing from the parlor floor up to the penthouse and roof terrace. The components are stacked within a narrow 20 foot lot and span four and a half stories.
Together, the stair and library interact as featured architectural components within the simple white box of the building envelope. The Library is formal and symmetrical, articulated with concave wood posts bounding wood paneling and thin steel shelves backed with glass. The stair, built with a white painted steel plate railing and floating wood treads, is juxtaposed as a light, fluid, and dynamic object.







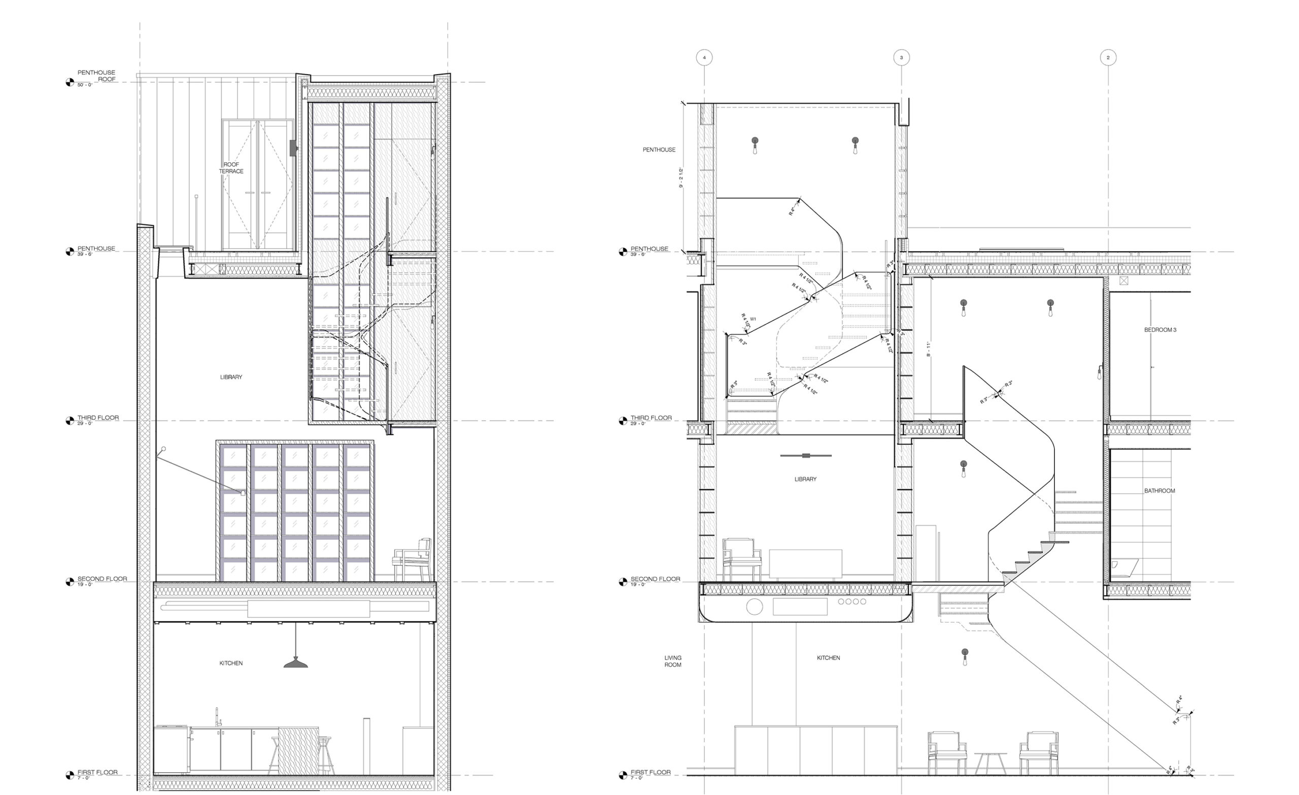
The library volume is seen in three dimensions throughout the house. Upon entering, one glimpses it ahead, then moves under it when passing through the kitchen. Moving deeper, its main facade sits above the double height living room.

The stair and library together create a vertical gesture drawing one upwards. Throughout the house, the vertical lines of the bookshelf ribs draw the eye up to the next room in the sequence. The stair interesects the library at one point, connecting two sides of the house like a bridge, and floats overhead as a sculptural object nested in the library itself. From there it continues up to make the connection to the penthouse and the roof terraces.


The library shelves themselves create a ascreened separation between rooms. From the living room, the shelves create and interior facade overhead. One looks up at the back of the bookshelves and the articulated framework of the shelving and gets a veiled view up into the library.


The shelves are spaced vertically a distance apart that allows larger format books to fit, but also creates a level of transparency between the levels of books. This creates an openness and airiness throughout that is not explicit, and creates a tension between spaces. One has a sense of what is happening above and below, or in the next room, but needs to explore more to find out exactly what that is.








Segments of the library appear throughout the house on all levels, and the functional bookshelves face, in turn: the library room itself, the corridors on the 3rd floor, and then the penthouse room at the top. In different rooms one sometimes sees the front of books, and sometimes the backs of books through the glass, or both.




Section Through Living Room Looking at Library & Section Through Stair and Library

Section Through Library & Section Through Library Looking at Stair

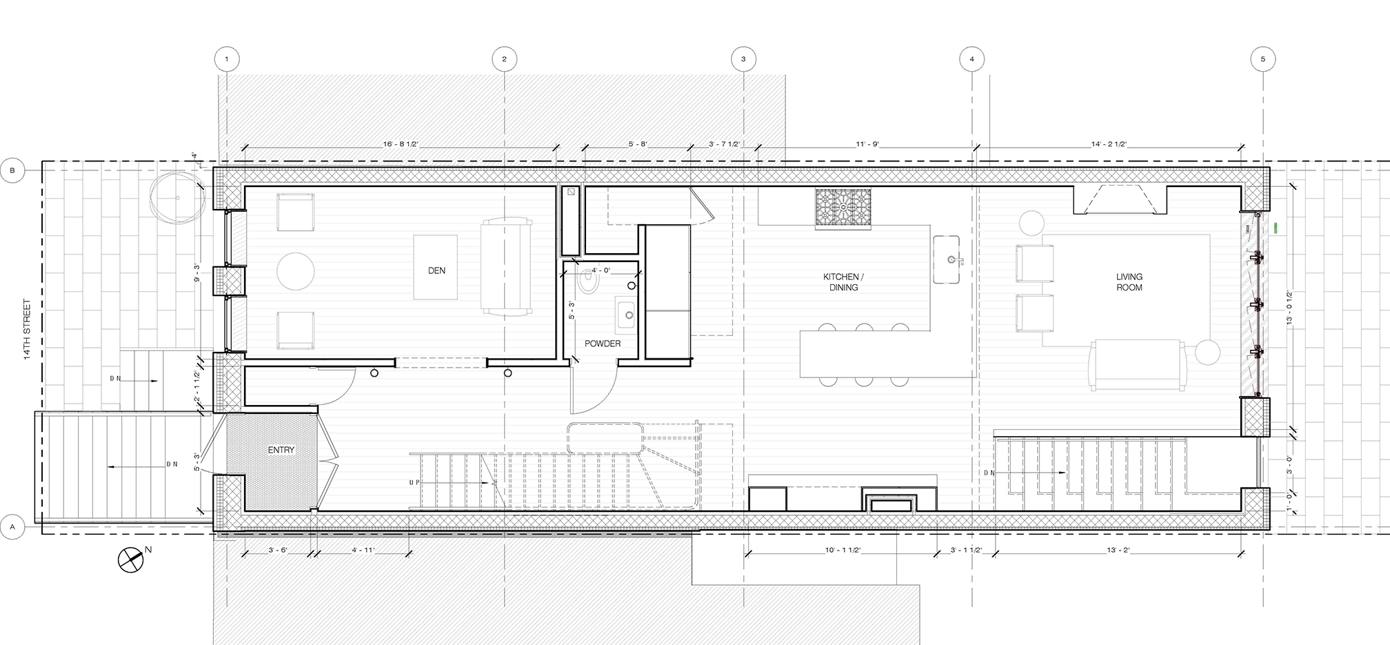
First Floor Plan

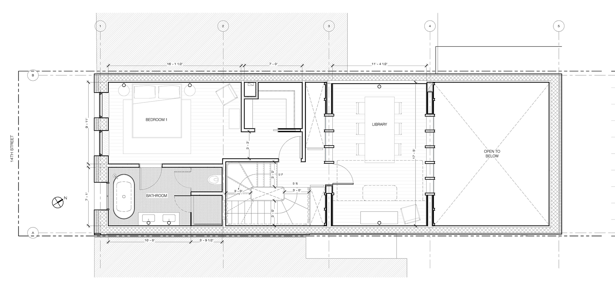
Second Floor Plan

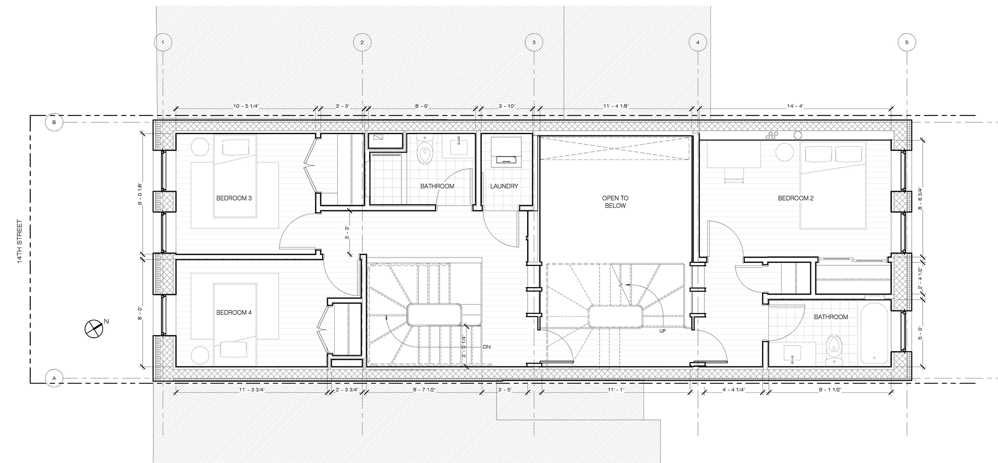
Third Floor Plan

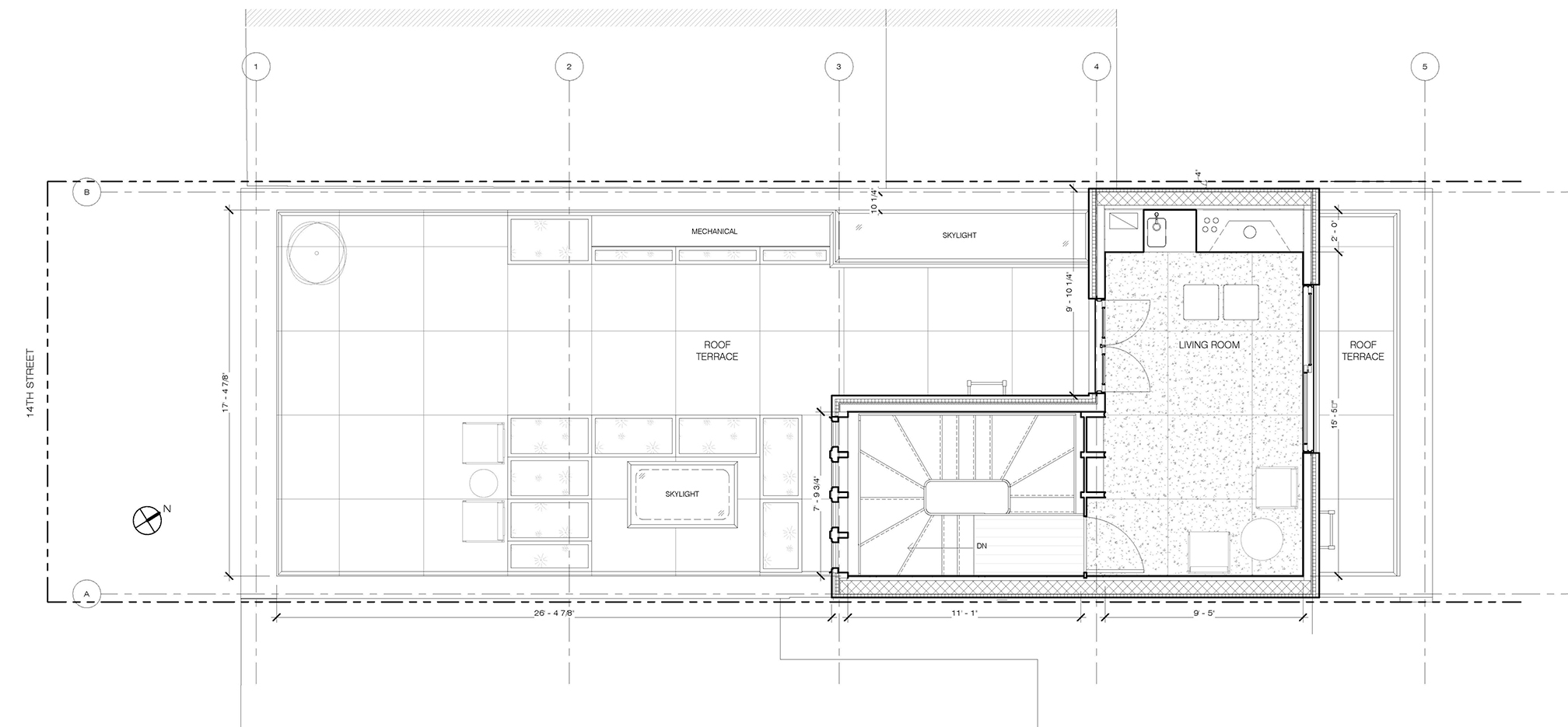
Penthouse Plan
